- RATHAUS & POLITIK
- Aktuelles
- Bürgerservice
- Politik
- Verwaltung
- LEBEN IN NEU-ANSPACH
- BAUEN & UMWELT
- Grundstücke Hochbau
- Natur Umwelt Klimaschutz
- Bäche & Hochwasserschutz
- Klima & Energie & Mobilität
- Natur & Landschaft
- Stadtwald
- Stadtentwicklung Stadtplanung
- Verkehr Tiefbau Ver- & Entsorgung
- WIRTSCHAFT & TOURISMUS
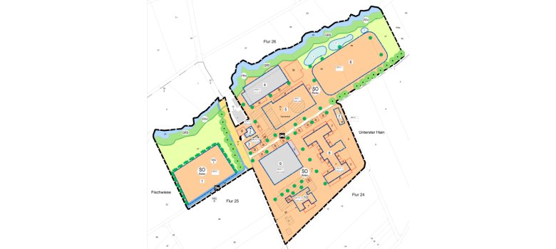
Bebauungsplan „Gut Tannenhof“
Öffentlichkeitsbeteiligung
Bebauungsplan „Gut Tannenhof“

© Stadt Neu-Anspach
- Bebauungsplan Vorentwurf
- Vorhabenplan
- Erschließungsplan
- Textliche Festsetzungen
- Begründung mit Umweltbericht
- Pläne und Berechnung zur Eingriffsbilanz
- Faunistische Erfassung
- Öffentliche Bekanntmachung
Kontakt
Suchergebnisse werden geladen
Keine Mitarbeitende gefunden.